
|
| twirqurky |
|
||
|
My high beams point up into space, at about 30 degree angle, which makes tehm pretyt much useless.
How do I adjust them to light up the road? Dont tell me I need to take the bar off.... |
||
| Top | |
||
| Disco Frank |
|
|||
|
do this at night on a flat ground
nar man pop the bonnet and turn on the lights and high beams. cover 1 set of lighst ie left then go to right of car and place you hand behidn the light there should be some sort of adjusting screws turn them i should move the light left ot righ other up down when u have 1 side done do the other by keeping 1 light covered u can see the light directions of the 1 u are adjusting more easyily
_________________ RIP SCOTT |
|||
| Top | |
|||
| Mechan1k |
|
||
|
I have the same issue with the aftermarket headlights ... the damn adjuster for left/right is situated behind the guard ... so i have to remove the damn headlight in the AU to adjust it (best guess) ... then refit it again and test.
A very lengthy process ... and these adjustors need a screwdriver as well ... whereas the factory lights have the big thumbwheels on them. Is there is a seperate adjustor for up/down for high beam ... or is it the same adjustor screw as low beam (entire headlight adjusts in one go)???? It's annoying ... my highbeam centre lights point up in the trees and out on angles ... a waste really. I am thinking about going back to the factory headlights as their beam adjustment was much better (headlights just don't look as good). Decisions decisions. One thing I will do i try and get the highbeam adjustment right and then fit the projectors afterwards and get them at the right level.
_________________ 04 Territory TX AWD - Winter White - optioned up |
||
| Top | |
||
| voids |
|
|||
|
the best way i found:
1.. find a long straight abandond road at night and line your car up. 2.. place a witches hat or some thing about 100-150m infront. or comfortable distance. 3.. disconect your high beam spotlights (the inner bulbs ot lights) and turn your high beam on. you can cover them up but you may warp your lense if u put something too close to the lights. 4.. use the orange adjusters on the back to bring your lights upto the witches hat or a comfortable distance in front in a concentrated pattern to the middle of the road. you may find it easier with one headlight shining at a time. 5.. you can use the top adjustres to move your lights from side to side i think its a 5 or 6mm alan key. the top or sise to side adjusters are a very fine adjustment so if they are out of wack you need to adjust the whole headlights at their fixing points. 6.. re conect it all back together and take it for a test drive. your outside set of light should be for distance and your inner set of lights are for coverage between the front of the car and to where your outer lights start to shine. this is for fairmont fairlane GT and LTD LIGHTS for a falcon your inner set of lights are for distance and outter set stay on all the time if i'm correct hope that helps _________________
_________________ '96 DF II LTD 6cy |
|||
| Top | |
|||
| twirqurky |
|
||
|
Yeah that does help thjanks for that. Might try it tomorrow night.
|
||
| Top | |
||
| twirqurky |
|
||
|
So how do I do it in an XR? I couldnt see any knobs that let me do that...
|
||
| Top | |
||
| mavs19 |
|
||||||
|
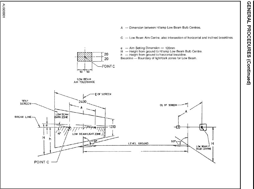
Here is what Ford's own workshop manual says about adjusting your headlights.
Headlamp Adjustment Driving Beam Low Beam The driving beam is fixed internally within the headlamp relative to the low beam. Whenever the (Refer to diagram on following page.) low beam aim is adjusted the driving beam is also 1. To adjust the headlamp aim in accordance with adjusted. this specification, a flat vertical test screen as shown is required. Alternatively an approved headlamp aim testing device may be used. 2. The vehicle must have the correct tyre pressure, must be unloaded, have a fully filled tank and the hand brake must be in the fully released position. 3. The vehicle must be placed on a flat horizontal surface and carefully positioned 10 metres from the test screen. 4. Gently rock vehicle to obtain correct horizontal vehicle attitude. 5. Measure H the height of the headlamp low beam bulb centre above ground. For different lamps and vehicles this height will vary due to vehicle production tolerance. 6. Set the horizontal breakline on the test screen to a height h = H-e where e is the aim setting dimension. 7. Measure A the distance between the low beam bulb centres. Using this dimension set up the low beam aim centre C and construct the 15 inclined breakline from this point on the test screen. 8. Switch on the low beam lights and cover all lamps except the one that is being aimed. 9. Using the horizontal and vertical aim adjusting screws shift the light pattern of the headlamp on the test screen until the light/dark boundaries of the light pattern coincides with the breaklines on the test screen. The low beam pattern should now be centred on point C. 10. Repeat the above procedure to adjust the remaining headlamp. High Beam The high beam aim is fixed internally within the headlamp relative to the low beam. Whenever the low beam aim is adjusted the high beam aim is also adjusted.
_________________
|
||||||
| Top | |
||||||
| uglybob |
|
|||
|
i hate that there is one metal & one plastic cog - my metal one chewed my plastic one & now my bloody high-beam has been adjusted down & i can't get it to move back up!
_________________ R.I.P. Scotty |
|||
| Top | |
|||
| voids |
|
|||
|
i also found that some h4 globes are not as focused as others some times it pays to slightly bend the 3 metal tabs in or out to get a different beam pattern.
_________________ '96 DF II LTD 6cy |
|||
| Top | |
|||
| mavs19 |
|
|||
|
{USERNAME} wrote: i hate that there is one metal & one plastic cog - my metal one chewed my plastic one & now my bloody high-beam has been adjusted down & i can't get it to move back up! It sounds that it is time to get a new or better headlight assy or put the old one in the oven and separate the lens from the housing and replace or fix the old bits. {USERNAME} wrote: i also found that some h4 globes are not as focused as others some times it pays to slightly bend the 3 metal tabs in or out to get a different beam pattern.
Sounds as if you or if there were previous owners may have used a higher Wattage bulb and the extra heat may have melted and deformed the reflector/s. I need to see a pic of the bulb you are using to be more specific.
_________________
|
|||
| Top | |
|||
| voids |
|
|||
|
i use philips vision plus globes 60/55w and my reflectors are in good nic.
some times your filiments in your globe could be sitting back slightly further or in a different then usual position or you could have a reflector problem. in my old car the driver side headlight did not shine anyware tryed to adjust and no difference had a few trys at bending the tabs into the right position and there was a beam pattern on the road. same thing with a torch you can alter the beam pattern by bringing the bulb in or out of the reflector. classic example dolphin torch with a focus adjustment. some times in a torch you may get a bulb that shines like a poofters a***hole, the fillement may be bent to one side, you can bend one side of the little skirting of the bulb to focusto get a perfect beam.
_________________ '96 DF II LTD 6cy |
|||
| Top | |
|||
| Who is online |
|---|
Users browsing this forum: No registered users and 38 guests |